About
Our Team
Our Story
Listings
Services
Contact Us
About
Our Team
Our Story
Listings
Services
Contact Us
Back to Search
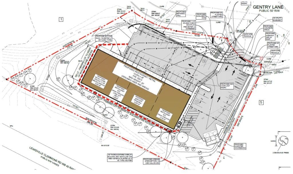
3487 Gentry Lane
Clemmons, North Carolina 27012
|
Forsyth County
Call For Pricing
Retail
|
For Lease
×
×
×
×
×
×
Property Details
Status:
For Lease
Price:
Call For Pricing
Type:
Retail
Available Sq. Feet:
1,250-4,500 +/- SF
Acreage:
1.34 +/- AC
Zoning:
HB (Highway Business)
Property Description
1,250-4,500 SF Available
Well-located in high traffic hot spot, Clemmons Town Center
Neighboring 312 unit luxury apartments within walking distance, 150+/- more planned on Village Point Drive
Tenant Uses: Retail, Take-Out Restaurant, Office, Professional Services, Healthcare
Available Q2 2027
Please call for lease rates
Map
Download Flyer
Contact Details
Lee Chewning
Agent
336-655-8063
lee@freemancommercial.com
Request More Info
Name
*
Email
*
Phone
Message
Δ