1475 Professional Park Drive

Winston Salem, North Carolina 27103 | Forsyth County

Multiple - See Flyer

Land | For Sale

Property Details

Status: For Sale
Price: See Flyer
Type: Land
Zoning: General Office

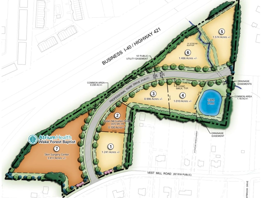
Property Description

  • 5 pad ready sites available, well located near I-40/Hwy 421.
  • Graded, shovel-ready sites with utilities.
  • Storm water in place, increasing usable acreage.
  • Rare General Office zoning with no special use restrictions, allowing a long list of office, medical, institutional, and residential uses.
  • Adjacent to nearly 150 acre office park between I-40 and Hwy 421 in Winston’s largest retail/medical market.
    • Lot 1: 1.2 +/- AC
    • Lot 3: 1 +/- AC
    • Lot 4: 1 +/- AC
    • Lot 5: 1.5 +/- AC
    • Lot 6: 1.2 +/- AC

Map

Contact Details

Charlie Freeman

Agent

336-768-4410
charlie@freemancommercial.com

Request More Info